Sabay 40.04 Lam Sơn
Bản đồ tiện ích
MEOFFICE
Xem vị trí trực quan
Tiện ích xung quanh tòa nhà
Tìm kiếm địa điểm và chỉ đường
Văn phòng cho thuê lân cận
Thông số cao ốc văn phòng cho thuê Sabay 40.04 Lam Sơn
Diện tích cho thuê
100 – 165 – 325 – 660 – 950 – 1210 m²
Hướng văn phòng
Trạng thái
Đang cho thuê
Phân hạng
Kết cấu tòa nhà
2 Hầm – 8 Tầng Nổi
Thang máy
1
Đỗ xe
Tầng hầm
Điều hòa
Treo tường
Giờ làm việc
07:30 - 18:00 (thứ 2 đến thứ 6)07:30 - 12:00 (thứ 7)
Điện dự phòng
Có
Chiều cao trần
2.7 m
WC
2 WC nam nữ riêng biệt mỗi tầng
Giá thuê, phí dịch vụ và chi phí khác tại Sabay 40.04 Lam Sơn
Giá cho thuê
10-11 $/m2
Phí quản lý
3 $/m2
VAT
Chưa bao gồm 10% VAT
Giá tổng (Đã VAT)
14.3 $/m2
Phí gửi xe máy
Thoả thuận
Phí gửi ô tô
Thoả thuận
Tiền điện
3.900đ /kWh
Điện lạnh
Theo đồng hồ riêng
Phí ngoài giờ
Thoả thuận
Tiền nước
Miễn phí
Ưu điểm của cao ốc văn phòng cho thuê Sabay 40.04 Lam Sơn
- Giá thuê khá thấp so với các cao ốc văn phòng đồng hạng cùng khu vực
- Sở hữu nhiều tiện ích xung quanh toà nhà
- Đáp ứng được diện tích thuê lớn (>1.000 m²) so với các toà nhà hạng C cùng khu vực
Thông tin hợp đồng cho thuê Sabay 40.04 Lam Sơn
Thời gian thuê
2 Năm
Đặt cọc
3 Tháng
Thanh toán
Theo quý
Miễn phí thi công
7-15 ngày tuỳ diện tích
ME OFFICE hỗ trợ gửi hợp đồng mẫu đến Quý khách qua email
Thông tin chi tiết về cao ốc văn phòng cho thuê Sabay 40.04 Lam Sơn
- Tên khác: Tòa nhà Sabay 40.04 Lam Sơn, Cao ốc Sabay 40.04 Lam Sơn
- Địa chỉ: 40/04 Lam Sơn, Phường 2, Quận Tân Bình, TP HCM
- Kết cấu: 2 Hầm – 8 Tầng Nổi – 1 Thang máy
- Diện tích sàn tối đa: 165 m²
- Tổng diện tích cho thuê: 1.320 m²`
Các tiện ích đi kèm của Sabay 40.04 Lam Sơn
|
|
Diện tích trống tại cao ốc văn phòng cho thuê Sabay 40.04 Lam Sơn
Xin vui lòng để lại email, ME Office sẽ thông tin đến bạn ngay khi có cập nhật mới nhất về diện tích trống và giá thuê.
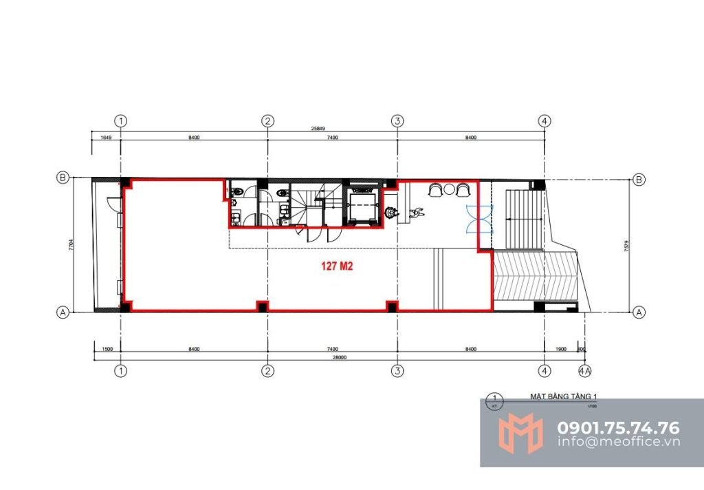
Mặt bằng cao ốc văn phòng cho thuê Sabay 40.04 Lam Sơn
Giới thiệu về cao ốc văn phòng cho thuê Sabay 40.04 Lam Sơn
Văn phòng cho thuê Sabay 40.04 Lam Sơn tọa lạc trên đường Lam Sơn, Phường 2, Quận Tân Bình. nằm bên phía tây của sông Sài Gòn, xung quanh giáp liền với các Quận 3, 10, 11, 12, Tân Phú, Gò Vấp và Quận Phú Nhuận. Phía Bắc của Quận là sân bay quốc tế lớn nhất của Việt Nam, sân bay Tân Sơn Nhất.
- Cơ sở Trường Sơn – Trường Đại học Ngoại ngữ – Tin học TP. Hồ Chí Minh (HUFLIT) (32 Trường Sơn, Phường 2, Tân Bình) – 500m
- Trường Đại học Tài Chính – Marketing (2C Đ. P. Quang, Phường 2, Tân Bình) – 1.7km
- Đại Học Gia Định – Cơ sở 2 (33/24H Hẻm 50/17 D. Quãng Hàm, Phường 3, Gò Vấp) – 1.6km
- Trạm Xăng Dầu PV OIL (45 Trường Sơn, Phường 2, Tân Bình) – 550m
- Trạm Xăng Dầu Trung Đoàn Thông Tin 23 Qk 7, 102 Đ. P. Quang, Phường 2, Tân Bình – 1,4km
- Cảng hàng không Quốc tế Tân Sơn Nhất – 800m
- Bệnh viện Đa khoa Tâm Anh (2B Đ. P. Quang, Phường 2, Tân Bình) – 1.3km
- Công Viên Hoàng Văn Thụ – 1.8km
- Hàng loạt các nhà hàng, quán ăn phục vụ cho giới văn phòng trong bán kính 500m
Nhờ vị trí thuận lợi, Sabay 40.04 Lam Sơn luôn đạt tỉ lệ lấp đầy lý tưởng; ngay cả khi thị trường văn phòng cho thuê tại TP.HCM đang cung lớn hơn cầu như hiện nay.
Quý khách còn thắc mắc về Sabay 40.04 Lam Sơn hoặc các cao ốc văn phòng cho thuê Quận Tân Bình cùng khu vực, vui lòng liên hệ bộ phận cho thuê qua hotline: 0901.75.74.76 để được tư vấn báo giá cũng như hướng dẫn đi tham quan văn phòng.
Mọi dịch vụ đều 100% miễn phí. Quý khách không cần trả bất kì chi phí nào.
Những thắc mắc khách hàng thường gặp
➤ BQL cao ốc Sabay 40.04 Lam Sơn - Hotline: 0901.75.74.76
Trả lời: Bạn có thể liên hệ BQL Sabay 40.04 Lam Sơn qua hotline ☎: 0901.75.74.76 để cập nhật diện tích trống, cũng như được hỗ trợ về các vấn đề thuê văn phòng.
❃ Sabay 40.04 Lam Sơn thuộc chuẩn cao ốc văn phòng hạng A hay B?
Trả lời: Sabay 40.04 Lam Sơn là cao ốc văn phòng đạt tiêu chuẩn hạng C.
❃ Sabay 40.04 Lam Sơn có cho thuê văn phòng ảo hoặc văn phòng trọn gói không?
Trả lời: Hiện tại Sabay 40.04 Lam Sơn chưa cung cấp dịch vụ văn phòng ảo mà chỉ có văn phòng cho thuê dạng truyền thống.
❃ Sabay 40.04 Lam Sơn có cho phép mang thú cưng vào văn phòng?
Trả lời: Nhằm đảm bảo an toàn và vệ sinh chung, xin quý khách vui lòng không mang thú cưng đến nơi làm việc.
➤ Báo giá, diện tích trống & hợp đồng mẫu tại Sabay 40.04 Lam Sơn
Trả lời: Bạn có thể gửi yêu cầu báo giá, bản vẽ mặt bằng hoặc hợp đồng mẫu thông qua hotline và email sau
☎ Hotline: 0901.75.74.76
📧 Email: info@vanphong.me
Chúng tôi sẽ liên hệ báo giá trong vòng 5 phút. Mọi dịch vụ đều hoàn toàn miễn phí.

























